






PROJET:
PHASE:
LOCALISATION:
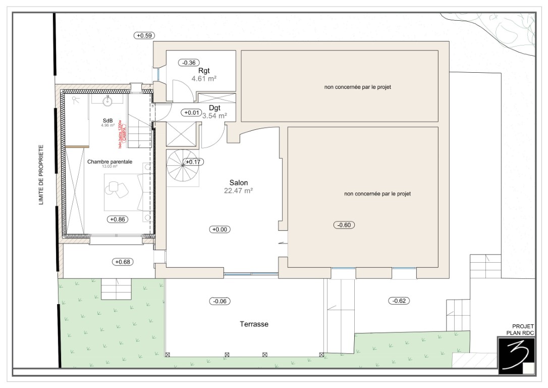
Extension d’une habitation
PC
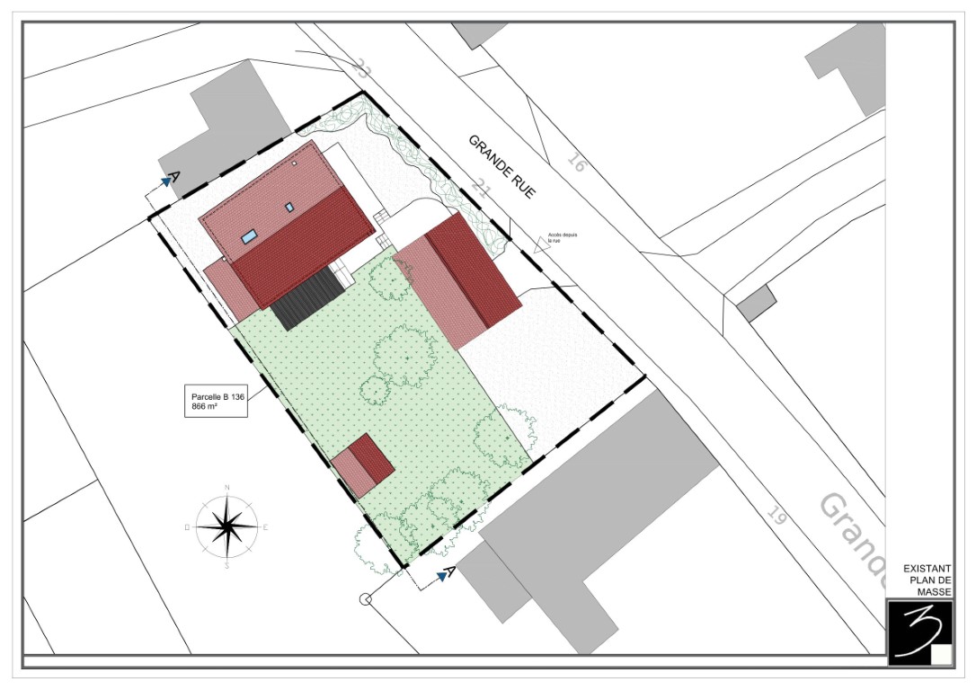
EAUX PUISEAUX
Agence d'Architecture CARRE3
1 bis rue des bûchettes 10220 GERAUDOT
Archi: 06 59 21 72 86 BE: 06 67 89 16 63
Mail: agencecarre3@gmail.com
Bureau d’étude: carre3.be@gmail.com
Carre3 est une agence créative spécialisée
dans la conception et la réalisation de projets sur mesure, alliant design innovant,
communication impactante et expertise technique.
Nous accompagnons nos clients
à chaque étape pour donner vie à leurs idées.